Tampa, Florida
2005
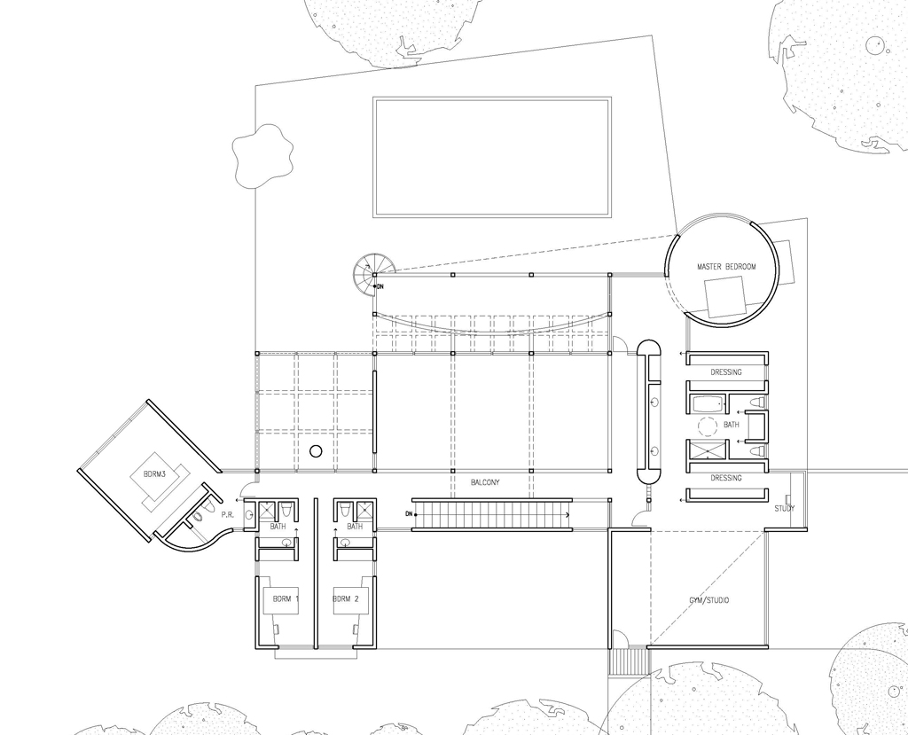
A centralized double height space visually connects the reflecting pool on the entry side of the house with the swimming pool and the bay. The stairs and a bridge across connect the functions of the house.
Celeste Umpierre was the project architect while working at Gwathmey Siegel Architects for this work.