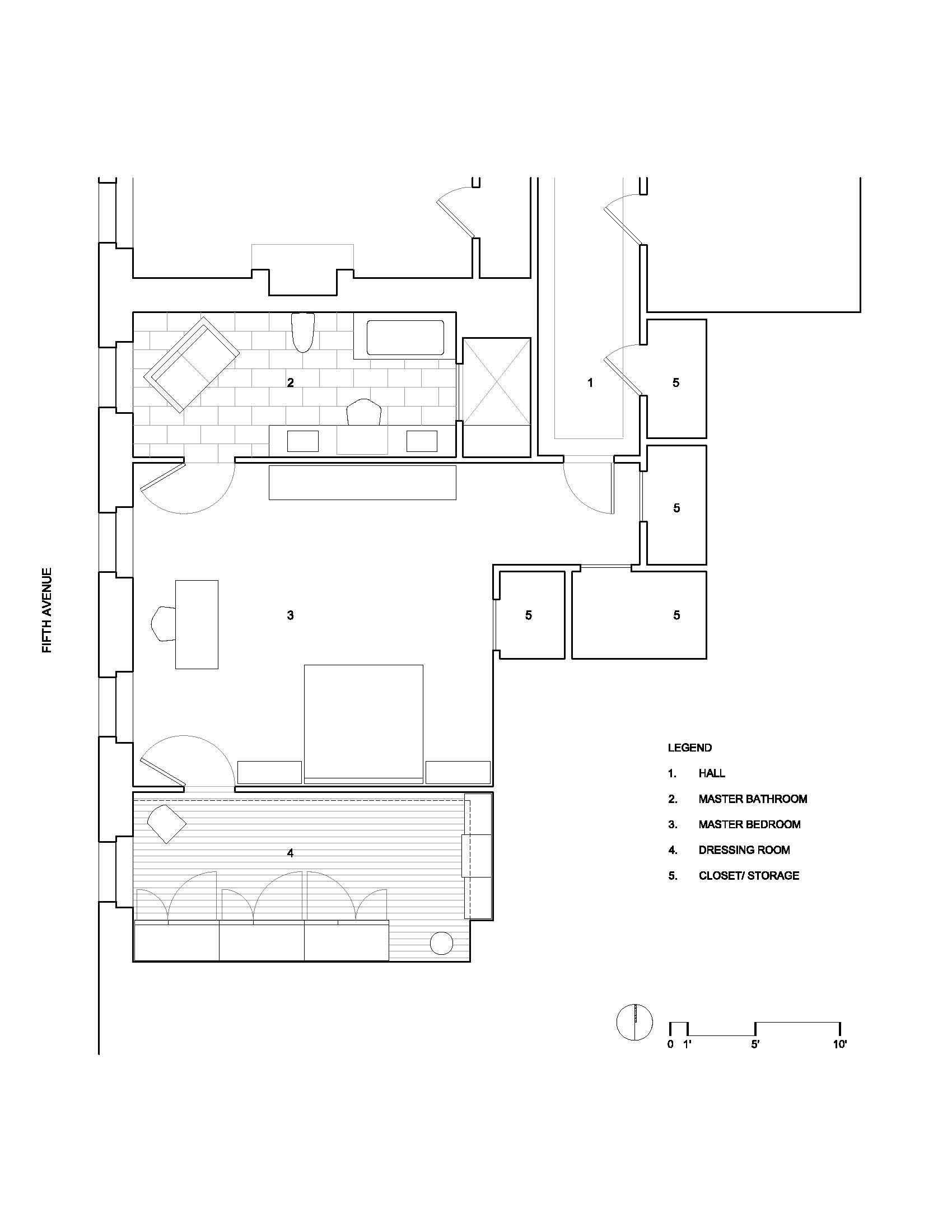
Within a Central Park-facing residence on 5th Ave, this master suite dressing room was designed for a distinguished art collector and philanthropist.
The renovation focused on the transformation of six pairs of closet doors, presenting a design challenge due to the requirement of maintaining existing hinge locations. CU-A approached this as an opportunity to reimagine the doors' meeting points, traditionally mundane spaces reserved for hardware. The closet was reconceived as a functional sculpture through the customization of finger pulls with stainless steel panels and translucent resin windows.
The design creates a dynamic visual dialogue between user and object, with the interplay of materials and light elevating the daily ritual of dressing into an artistic experience. Grazing lights installed along the top of the cabinets emphasize the doors' three-dimensional qualities, while interior illumination filters through the resin panels to cast an ethereal glow, transforming the doors' appearance throughout the day. The concealed hardware and non-traditional arrangement of metal and resin panels challenge conventional cabinet design while maintaining perfect functionality.
Although a single element within a larger private residence, the dressing room embodies CU-A’s design philosophy in which everyday objects transcend their utilitarian purposes to become works of art.














